107.30 m2
Zgrada C: Stan 4
Površine:
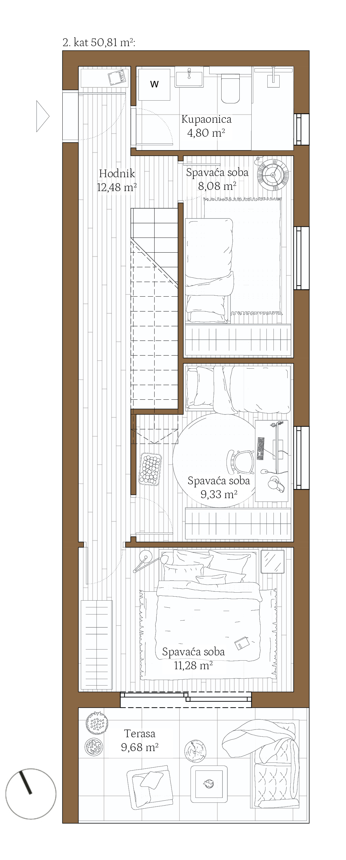
Hodnik: 12.48 m2
Kupaonica: 4.80 m2
Spavaća: 8.08 m2
Spavaća: 9.33 m2
Spavaća: 11.28 m2
Terasa: 9.68 m2
Stubište: 3.80 m2
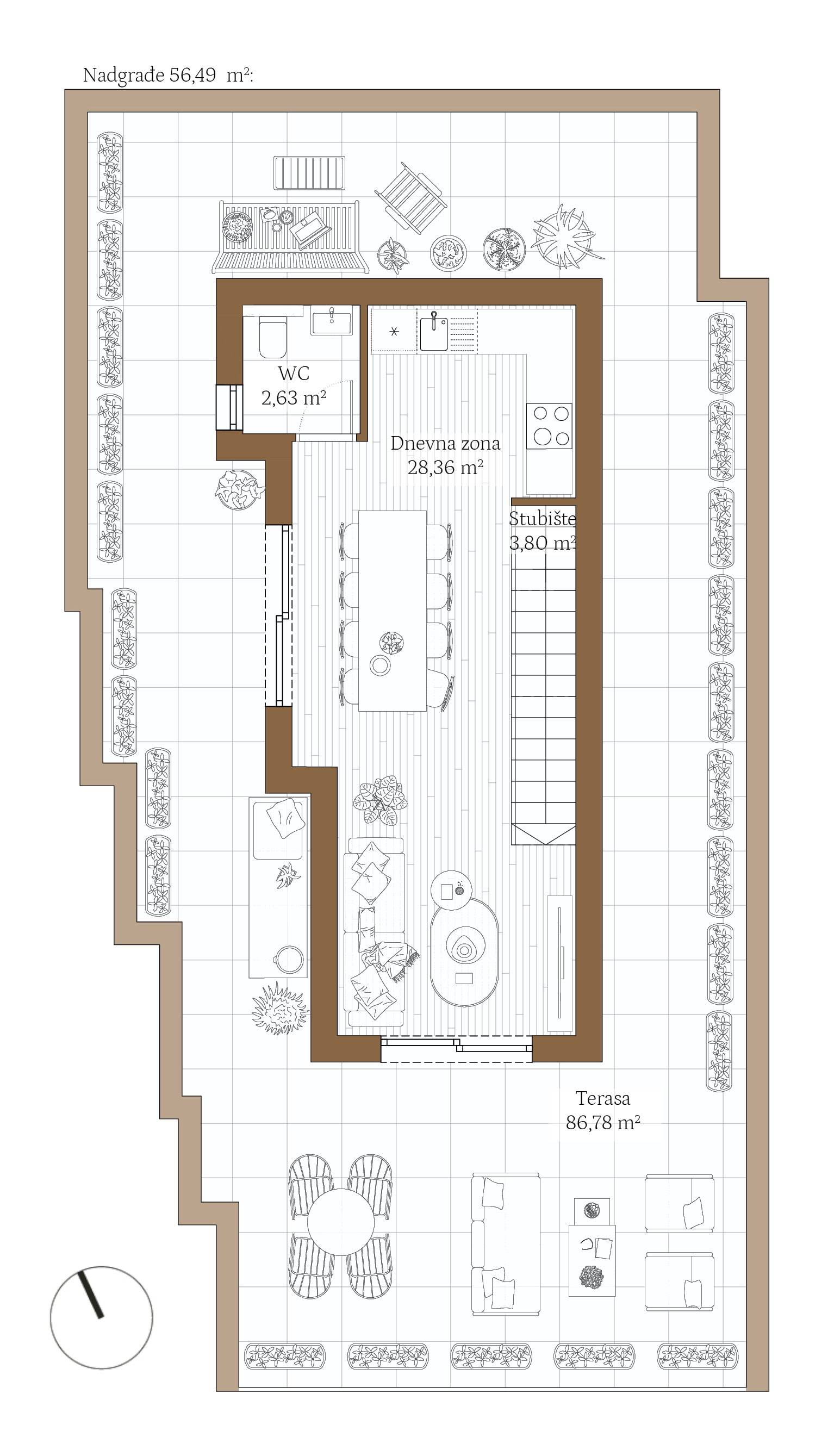
Dnevna zona: 28.36 m2
WC: 2.63 m2
Terasa: 86.78 m2
P: 177.22 m2
Pk: 107.30 m2
Tlocrt stana:
Ugrađena oprema i materijali:
Svaki stan opremljen je s pažnjom prema detaljima i visokim standardima gradnje.
U pogledu opreme, odabrani su renomirani proizvođači koji jamče dugotrajnost, funkcionalnost i estetiku:
- Klimatizacijski uređaji: Daikin - vrhunska učinkovitost i udobnost u svakom prostoru.
- Sanitarije: Hansgrohe i Geberit - poznati po modernom dizajnu i pouzdanosti.
- Podno grijanje: U kupaonicama je instalirano podno grijanje za dodatnu udobnost tijekom zimskih mjeseci.
- Keramika: Premium talijanska keramika.
- Podovi: Parket od hrasta, I kategorije.
- Stolarija: Vanjska stolarija izrađena od aluminija - dugotrajna, elegantna i energetski učinkovita.