Loading...
Skip to Content

 

















103.62 m2

Zgrada B: Stan 4

Površine:

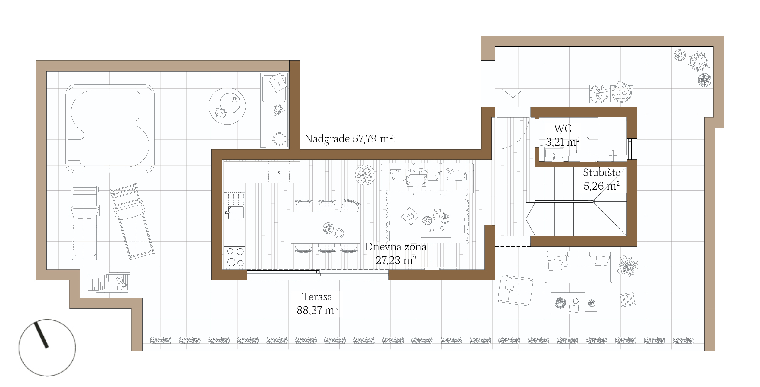
Hodnik: 11.00 m2

Kupaonica: 4.41 m2

Spavaća: 8.48 m2

Spavaća: 9.24 m2

Spavaća: 10.83 m2

Terasa: 3.74 m2

Stubište: 5.26 m2

WC: 3.21 m2

Dnevna zona: 27.23 m2

Terasa: 88.37 m2

P: 171.77 m2

Pk: 103.62 m2





PDF

Tlocrt stana:

Ugrađena oprema i materijali:


Svaki stan opremljen je s pažnjom prema detaljima i visokim standardima gradnje.
U pogledu opreme, odabrani su renomirani proizvođači koji jamče dugotrajnost, funkcionalnost i estetiku:

- Klimatizacijski uređaji: Daikin - vrhunska učinkovitost i udobnost u svakom prostoru.
- Sanitarije: Hansgrohe i Geberit - poznati po modernom dizajnu i pouzdanosti.
- Podno grijanje: U kupaonicama je instalirano podno grijanje za dodatnu udobnost tijekom zimskih mjeseci.
- Keramika: Premium talijanska keramika.
- Podovi: Parket od hrasta, I kategorije.
- Stolarija: Vanjska stolarija izrađena od aluminija - dugotrajna, elegantna i energetski učinkovita.

Virtualna tura:




3D tlocrt:




Prikaz enterijera: