96.13 m2
Zgrada B: Stan 1
Površine:
Kupaonica: 2.16 m2
Hodnik: 11.97 m2
Dnevna zona: 25.20 m2
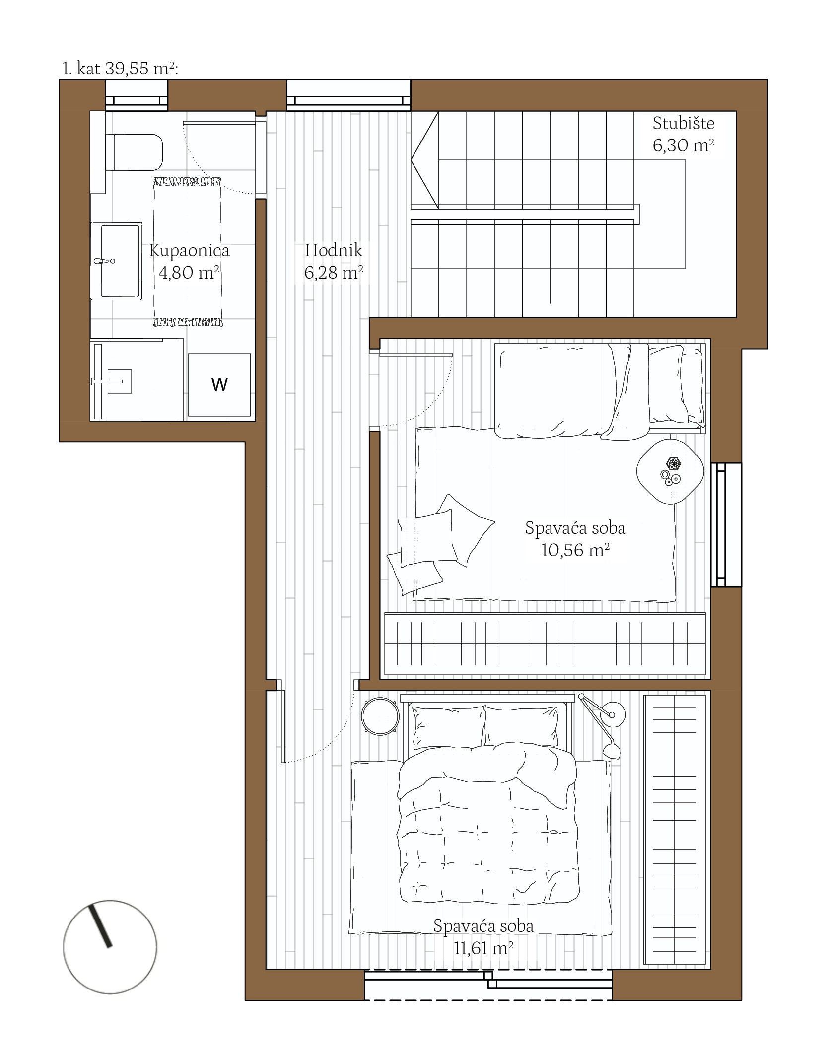
Stubište: 6.30 m2
Hodnik: 6.28 m2
Kupaonica: 4.80 m2
Spavaća: 10.56 m2
Spavaća: 11.61 m2
Vrt: 69.00 m2
P: 147.88 m2
Pk: 96.13 m2
Tlocrt stana:
Ugrađena oprema i materijali:
Svaki stan opremljen je s pažnjom prema detaljima i visokim standardima gradnje.
U pogledu opreme, odabrani su renomirani proizvođači koji jamče dugotrajnost, funkcionalnost i estetiku:
- Klimatizacijski uređaji: Daikin - vrhunska učinkovitost i udobnost u svakom prostoru.
- Sanitarije: Hansgrohe i Geberit - poznati po modernom dizajnu i pouzdanosti.
- Podno grijanje: U kupaonicama je instalirano podno grijanje za dodatnu udobnost tijekom zimskih mjeseci.
- Keramika: Premium talijanska keramika.
- Podovi: Parket od hrasta, I kategorije.
- Stolarija: Vanjska stolarija izrađena od aluminija - dugotrajna, elegantna i energetski učinkovita.