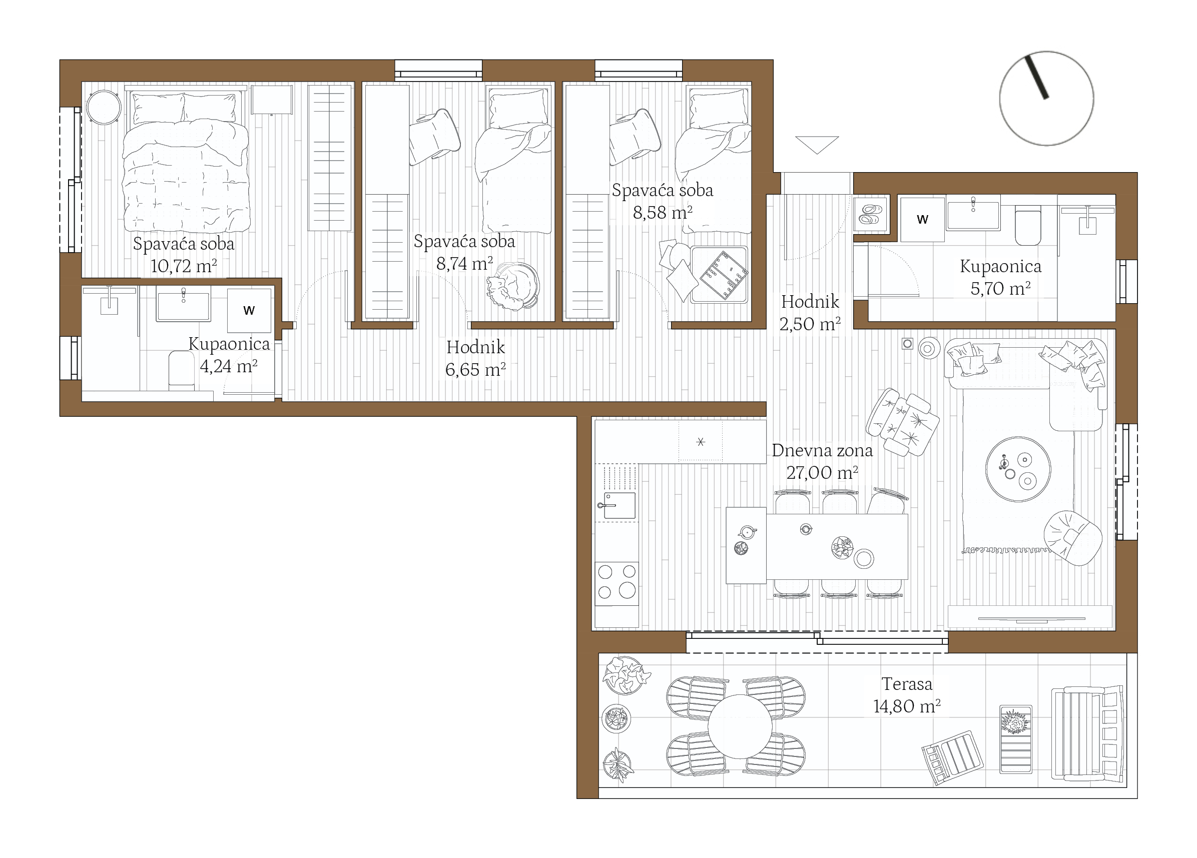
81.53 m2
Zgrada A: Stan 2
Površine:
Hodnik: 2.50 m2
Hodnik: 6.65 m2
Spavaća: 8.58 m2
Spavaća: 8.74 m2
Spavaća: 10.72 m2
Kupaonica: 4.24 m2
Dnevna zona: 27.00 m2
Kupaonica: 5.70 m2
Terasa: 14.80 m2
P: 88.93 m2
Pk: 81.53 m2
Ugrađena oprema i materijali:
Svaki stan opremljen je s pažnjom prema detaljima i visokim standardima gradnje.
U pogledu opreme, odabrani su renomirani proizvođači koji jamče dugotrajnost, funkcionalnost i estetiku:
- Klimatizacijski uređaji: Daikin - vrhunska učinkovitost i udobnost u svakom prostoru.
- Sanitarije: Hansgrohe i Geberit - poznati po modernom dizajnu i pouzdanosti.
- Podno grijanje: U kupaonicama je instalirano podno grijanje za dodatnu udobnost tijekom zimskih mjeseci.
- Keramika: Premium talijanska keramika.
- Podovi: Parket od hrasta, I kategorije.
- Stolarija: Vanjska stolarija izrađena od aluminija - dugotrajna, elegantna i energetski učinkovita.
